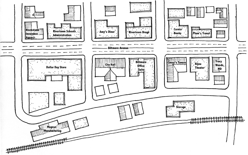
Sketch of Rivertown


Below is an image of Rivertown's older downtown district as it was at the beginning of the exercise.

You can also see...
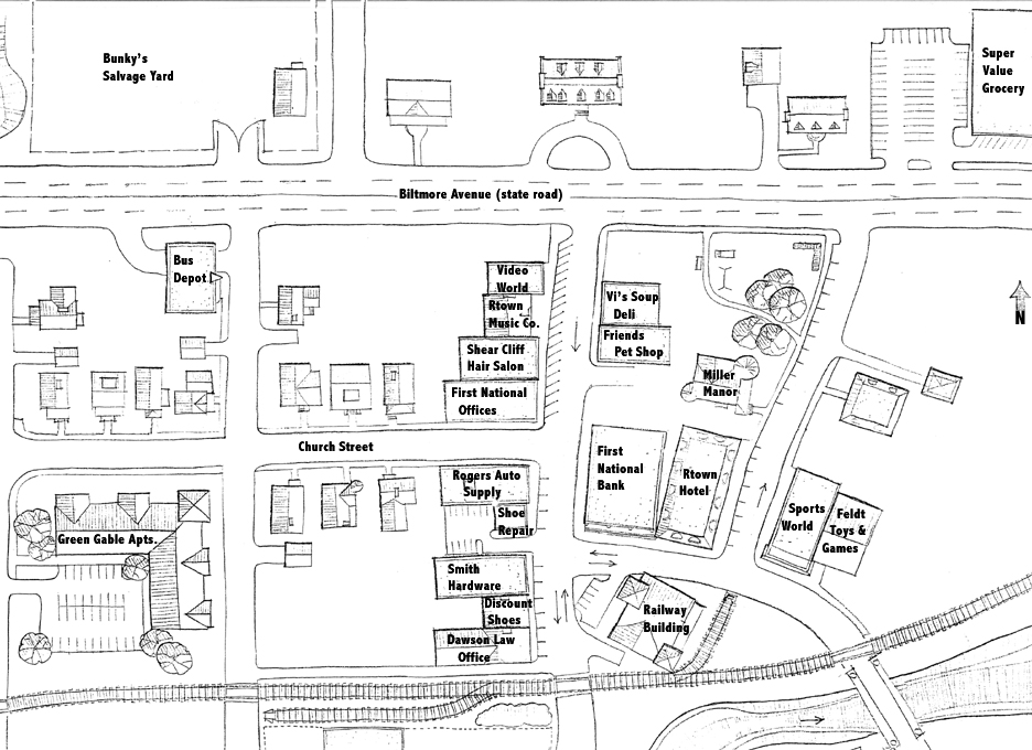
an updated plan view of the downtown and a nearby neighborhood;
the Biltmore Avenue commercial area;
the entire city.

.